Nhà
Nhà cấp 4 ngang 10,4m gần Vinhome Q9, Nguyễn Xiển, giá 37tr/m2
16/, Đường số 9, Long Tuyền, Cần ThơMức giá
4.3 tỷ
Diện tích
116 m²
Thông tin mô tả
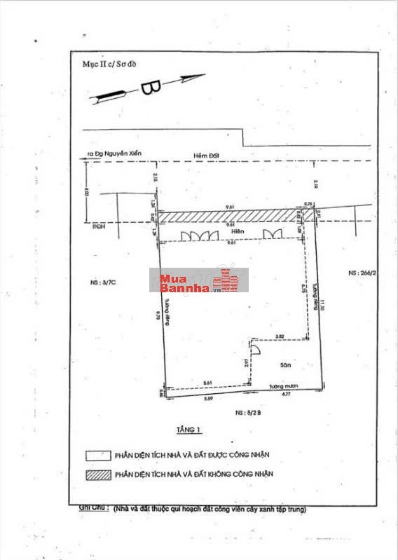
CHÍNH CHỦ BÁN NHÀ HẺM NGUYỄN XIỂN, LONG BÌNH, QUẬN 9, TP. THỦ ĐỨC
- Diện tích: 10,4m x 12m công nhận 116,7m2
- Diện tích hiện trạng: 131m2
- Kết cấu: nhà cấp 4, chia làm 2 căn nhà riêng biệt, mỗi căn 1 phòng khách, 1 phòng ngủ, 1 bếp, 1WC. Đồng hồ điện nước riêng mỗi căn
- Cách đường Nguyễn Xiển chỉ 50m, hẻm thông nhiều đường, Khu dân trí cao, yên tĩnh thoáng mát, thích hợp cho gia đình nhiều người hoặc ở 1 căn cho thuê 1 căn 
- Giá 4,3 tỷ thương lượng
ĐC: 16/ Đường số 9, phường Long Bình, Quận 9, Tp. Thủ Đức
https://maps.app.goo.gl/FHGSyRxY9SZhNMAi8?g_st=iz
HOA HỒNG 2%
Thông số bất động sản
- Mức giá
4.3 tỷ
 - Diện tích
116 m²
 - Chiều rộng
10.4 m²
 - Chiều dài
12 m²
 - Số phòng ngủ
4
 - Số phòng VS
4
 - Nội thất
Hoàn thiện cơ bản
 
Ngày đăng
30/10/2025
Ngày hết hạn
06/11/2025
Loại tin
THƯỜNG
Mã tin
8276
Bất động sản dành cho bạn
Quý vị đang xem nội dung tin rao "Nhà cấp 4 ngang 10,4m gần Vinhome Q9, Nguyễn Xiển, giá 37tr/m2". Mọi thông tin, nội dung liên quan tới tin rao này là do người đăng tin đăng tải và chịu trách nhiệm. Phongtro.vn luôn cố gắng để các thông tin được hữu ích nhất cho quý vị tuy nhiên Phongtro.vn không đảm bảo và không chịu trách nhiệm về bất kỳ thông tin, nội dung nào liên quan tới tin rao này. 




















